(Workshop 08) Measuring and plan
Before considering a design within St Paul Street Gallery 3, it was essential to gather correct measurements of the site. Correct documentations of these are essential to represent it accurately as a designer. We re-visited the site and I looked around, inside and out, multiple times just to get a feel for the space, considering the light and darkness within the space. I also considered the noisiness and quietness throughout the site, and the amount of privacy it has in different areas.


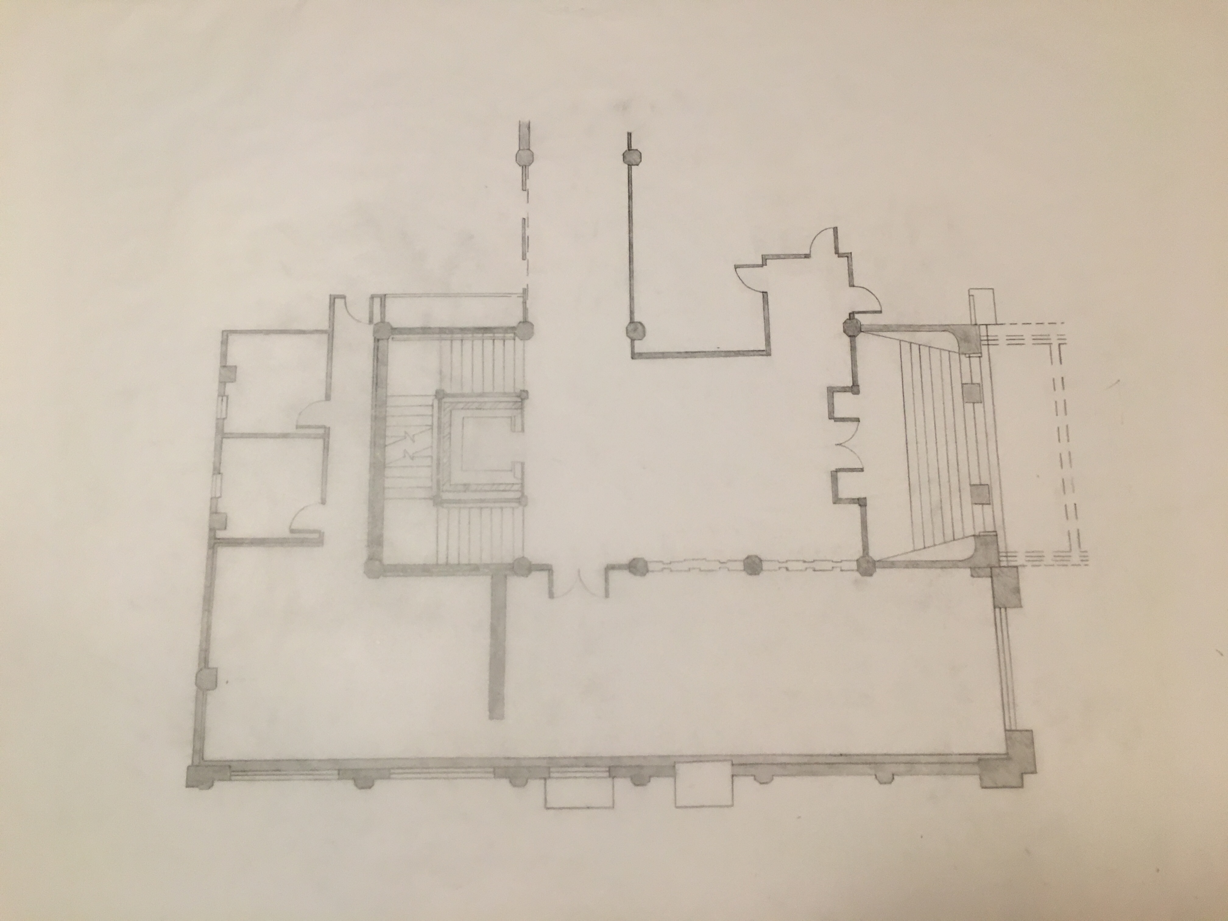
Existing building plan drawing (1:50)
The plan was drawn of the gallery room as well as the lobby/entrance room, elevator and main entrance to the building from Wellesley Street.
Threshold
The threshold that I came across while visiting Albert Park and the gallery were:
- light / dark
- open / close
- movement / stasis
- interior / exterior
- noisy / quiet
I saw the light which filtered through to the gallery room very beautiful. There was a casting of the main window’s shadow on the gallery floor which changed direction and size as well as intensity throughout the day. I compared this with the experience of each day I face. Each day is new and starts the same way and progresses, moves, brightens and fades into darkness when there is no more light and it is time to rest.
I wanted to capture this threshold moment in the space as there are very different light intensities in the space, ideal for the sleep/wake experience. The calm, private and intimate space that the gallery room holds is ideal for a setting to retire to sleep and set out into the world after sleeping and re-booting.

My A1 size threshold plan drawing (1:50), based on existing plan drawing
This first threshold drawing i made I wanted to capture the light quality within the existing building.


